Peel Ports Group, Sheerness Site Pontoon - Morson Praxis
Projects →

Peel Ports Group, Sheerness Site Pontoon

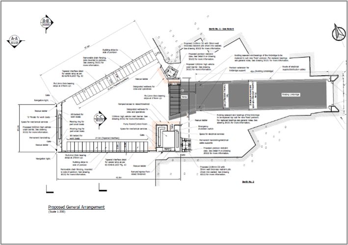
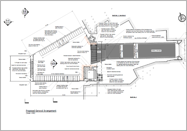
Morson Praxis were appointed by Peel Ports to support the replacement of the existing RoRo pontoon at Sheerness Port, which had reached the end of its serviceable life. The project formed a key element of the Sheerness Port Masterplan, focusing on improving berthing capacity and operational efficiency through innovative design and digital engineering.

Client Brief

Setting the Vision

Peel Ports required a full feasibility and design solution to replace the aging Royal Bridge pontoon. Working as part of a wider berthing improvement study, the objective was to enable the port to accommodate larger vessels, enhance safety, and future-proof its marine infrastructure.

Project Overview

Shaping the Development

Following an initial feasibility study, Morson Praxis undertook digital capture of the pontoon and surrounding structures using advanced laser scanning and GNSS technologies. This detailed site data provided the foundation for a coordinated BIM model and accurate condition assessment, ensuring informed decision-making for the subsequent redesign and construction phases.

Image Gallery

Capturing the evolution of Sheerness Port’s pontoon redevelopment.

Our Solution

Delivering with Expertise

Morson Praxis delivered a full suite of multidisciplinary services, including:

  • Laser Scanning and Digital Capture

  • BIM Modelling and 3D Coordination

  • Marine and Structural Engineering

  • Mechanical and Electrical Engineering

  • Commercial Management and Principal Designer Services

Using Faro laser scanning and Leica GNSS data, our team produced a unified 3D model within Autodesk Revit, providing a precise digital twin of the existing site. This allowed the design team to develop a new pontoon geometry to support larger vessels and integrate a new independent piled restraint system, reducing loading on existing quay structures.

Results

Measurable Impact

The redesigned pontoon accommodates the largest stern ramp vessels currently operating at Sheerness Port and is future-proofed for larger ships. Mechanical and electrical systems were upgraded for lighting, power, and self-ballasting.
Waldeck’s work provided Peel Ports with:

  • A cost-effective, buildable design ready for tender.

  • Enhanced operational capacity and safety for berthing operations.

  • A BIM-based digital asset model for ongoing maintenance and management.

Morson Praxis continues to provide technical support through the construction and handover phases, ensuring successful delivery of this critical marine infrastructure upgrade.

To top